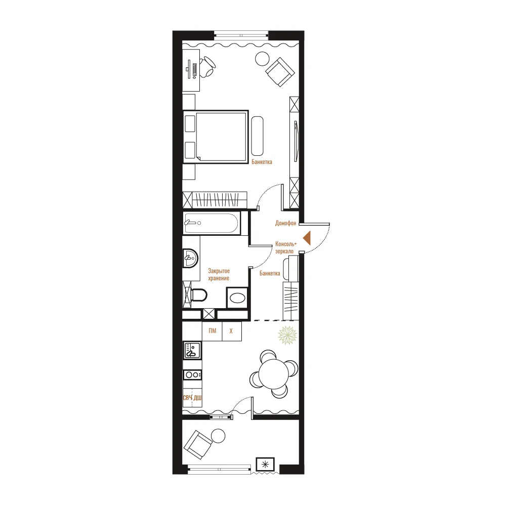
ПОХОЖИЕ ПЛАНИРОВКИ

СЕМЬ ОЧЕРЕДЕЙ СТРОИТЕЛЬСТВА
ДЕТСКИЕ САДЫ
И ШКОЛЫ
Уже функционируют и доступны для зачисления школы в г. Московский, вблизи метро Филатов луг и в районе
Коммунарка – до них будет организован развоз детей бесплатным школьным автобусом.
Время до школы займет 10 или 15 минут на автобусе-шаттле, в зависимости от выбранного маршрута.
Подать заявление на зачисление ребенка в школу можно на Госуслугах.
Внутри жилого комплекса также запланированы школа и детский сад, которые откроются сразу после сдачи второй очереди.
Ближайшие детские сады расположены в 10 минутах езды на машине, вблизи метро Филатов луг.

РЯДОМ ЕСТЬ ВСЕ
ДЛЯ КОМФОРТНОЙ ЖИЗНИ
ТРЦ Новомосковский
Торгово-развлекательный центр с гипермаркетом «О'кей» (08:00-00:00)
и круглосуточным фитнес-клубом «Ohana». Это ближайший к жилому комплексу крупный ТРЦ, расположенный в г. Московский.
8 минут
на машине
ХОД СТРОИТЕЛЬСТВА ПЕРВОЙ ОЧЕРЕДИ
ИПОТЕЧНЫЕ ПРЕДЛОЖЕНИЯ
Сбербанк
Семейная
|
Ставка от
3.5%
|
Срок до
30 лет
|
Платеж в месяц
57 140 руб. |
Альфа-банк
Семейная
|
Ставка от
4%
|
Срок до
30 лет
|
Платеж в месяц
59 703 руб. |
Совкомбанк
Семейная
|
Ставка от
4%
|
Срок до
30 лет
|
Платеж в месяц
59 703 руб. |










































